Beschrijving
Welkom bij deze charmante vrijstaande woning aan Groeneweg 17 in Rhenen.
Gelegen op een centrale locatie met vrij uitzicht over de parkeerplaats van het voorgelegen sportcentrum, een woonkeuken, vier slaapkamers, een ruime zij- en achtertuin met veel privacy en een eigen oprit zullen de nieuwe bewoners veel plezier aan deze woning beleven.
Dankzij de centrale ligging zijn zowel het gezellige centrum van Rhenen als de omliggende natuur binnen enkele (fiets)minuten te bereiken. De bushalte, het treinstation met rechtstreekse aansluiting op Utrecht Centraal en de N233 met ontsluiting richting de A12 en A15 zijn eenvoudig bereikbaar. Meerdere (basis)scholen bevinden zich op loopafstand.
Indeling
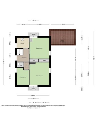
Via een klein trapje bereikt u de voordeur. U komt binnen in de hal, die toegang biedt tot de ruime kelder, de trap naar de eerste verdieping, de badkamer met toilet en de woonkeuken. Vanuit de woonkeuken is de woonkamer bereikbaar. Indien gewenst kan met een aanpassing een rechtstreekse toegang tot de woonkamer worden gerealiseerd.
De ruime woonkamer bevindt zich aan de rechterzijde van de woning en heeft ramen in de voor-, zij- en achtergevel. Hierdoor is de ruimte aangenaam licht en geniet u van een leuk uitzicht naar buiten in meerdere richtingen. De woonkamer is voorzien van een gaskachel, airco voor zowel koeling als verwarming en een vaste kast.
Aan de achterzijde van de woning bevindt zich de woonkeuken. De keuken heeft een hoekopstelling en is uitgerust met een inductiekookplaat, afzuigkap, combi-oven en koelkast. Daarnaast is er voldoende ruimte voor een eettafel om een gezellige leefkeuken te creëren.
De praktische bijkeuken, bereikbaar vanuit de woonkeuken, beschikt over veel opbergruimte dankzij de vaste kastenwand en de bergvliering. Ook is er een tweede keukenblok met wastafel, vaatwasmachine en aansluitingen voor de wasmachine en droger. Vanuit de bijkeuken bereikt u de tuin.
Eerste verdieping
Via de vaste trap komt u eerst, met enkele treden, uit bij de badkamer. Deze is neutraal betegeld en voorzien van comfortabele vloerverwarming, een douchecabine, wastafel en toilet. Wanneer u de trap verder oploopt, bereikt u de overloop met een vaste bergkast. Vanaf de overloop zijn de vier slaapkamers bereikbaar en heeft u toegang tot de bergvliering.
De hoofdslaapkamer bevindt zich aan de achterzijde, is ruim van opzet en voorzien van een vaste kast, openslaande deuren naar een klein balkon en een airco met koel- en verwarmfunctie. De tweede slaapkamer, eveneens aan de achterzijde gelegen, beschikt over een wastafel, vaste kast en openslaande deuren naar een klein balkon.
De overige twee slaapkamers bevinden zich aan de voorzijde. De kleinste kamer is momenteel in gebruik als kastenkamer en hier bevindt zich de elektrische boiler (huur). Door de boiler te verplaatsen of het verwarmingssysteem aan te passen, kan deze ruimte opnieuw dienen als volwaardige vierde slaapkamer of als thuiswerkplek.
Tuin
De achtertuin is prettig breed, biedt veel privacy en heeft een gunstige ligging ten opzichte van de zon. Direct achter de woning bevindt zich het terras. Achter de bijkeuken is de stenen berging met bergvliering gelegen. Het grootste deel van de tuin is momenteel ingericht als moestuin, inclusief een aanwezige kweekkas. De zijtuin is aangelegd als siertuin, waar zich eveneens de privé oprit bevindt.
Bijzonderheden
* Oplevering in overleg
* Nagenoeg alle ramen zijn voorzien van kunststof kozijnen met Hr+ glas
* Energielabel G