| Prijs | € 299.000,- k.k. |
| Type object | Appartement, galerijflat |
| Woonoppervlakte | 64 m² |
| Aanvaarding | In overleg |
| Status | Verkocht |
Van harte welkom bij dit centraal gelegen 2-kamer appartement aan Marktstraat 161 in Ede. Het appartement bevindt zich op de tweede woonlaag, waardoor er vanuit het appartement een mooi uitzicht is over het voorgelegen Kuiperplein. Door de centrale ligging in het centrum zijn alle voorzieningen letterlijk op loopafstand. Denk daarbij aan het uitgebreide winkelaanbod van Ede, het gezellige Museumplein met een divers horeca aanbod en de supermarkten in de omgeving. Treinstation Ede Centrum, met aansluitingen richting Amersfoort en Arnhem, ligt om de hoek. Daarnaast is het bos met enkele (fiets)minuten te bereiken en aansluitende de heide.
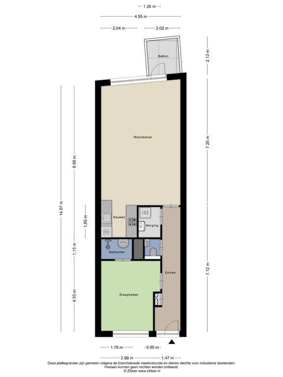
Begane grond Afgesloten hoofdentree met video-intercom, brievenbussen, lift en trappenhuis naar de woonlagen en de onderbouw. Appartement Met de lift of de trap bereikt u de tweede woonlaag. Via de voordeur komt u in de hal met meterkast, toegang tot de slaapkamer, toilet met fonteintje, de inpandige berging en aan het einde van de hal, de deur naar de woonkamer. De ruime woonkamer heeft een grote raampartij en een deur naar het balkon. Door het vele glas is de woonkamer aangenaam licht en is er een goed uitzicht over de omgeving. Er is voldoende ruimte voor zowel een comfortabele zithoek als een eettafel. Vanuit de woonkamer is er toegang tot het balkon, met plek voor een leuk zitje. Het balkon is vrijwel geheel op het westen gelegen, waardoor er vanaf de middag tot de late avond van de zon kan worden genoten. De open keuken is voorzien van een dubbele opstelling in een neutrale kleurstelling. Aan de ene kant bevindt zich het spoelgedeelte met koelkast, combi-oven en vaatwasmachine en aan de andere zijde bevindt zich het kookgedeelte met gaskookplaat en de afzuigkap. Door de vele onder- en bovenkastjes is er veel opbergruimte in de keuken aanwezig. Terug in de hal passeert u eerst de inpandige berging waar zich de opstelplaats voor de CV-ketel, de WTW-installatie, de aansluitingen voor uw eigen was- en droogmachine en extra bergruimte bevinden. De deur daarnaast geeft toegang tot het toilet met fonteintje. Tot slot bereikt u de ruime slaapkamer. Vanuit de slaapkamer is er toegang tot de neutrale badkamer, voorzien van wastafel en douchehoek. Onderbouw In de onderbouw bevindt zich een afgesloten privéberging voor de fiets en extra opslagruimte. Daarnaast is er de mogelijkheid om een privé parkeerplaats in de parkeergarage bij te kopen. De parkeerkelder is met een elektronisch te bedienen hekwerk afgesloten, zodat uw auto hier veilig staat.
* Optioneel is er een privé parkeerplek in de ondergelegen parkeergarage bij te kopen voor € 20.000,- k.k. * Oplevering in overleg, kan op korte termijn * De bijdrage voor de VvE bedraagt € 142,44,- per maand * Op het platte dak bevindt zich een grote zonnepaneel installatie (2023) die een groot deel van de collectieve elektra oplevert.
| Referentienummer | 72 |
| Vraagprijs | € 299.000,- k.k. |
| Servicekosten | € 142,44 |
| Status | Verkocht |
| Aanvaarding | In overleg |
| Aangeboden sinds | Donderdag 11 december 2025 |
| Laatste wijziging | Woensdag 25 februari 2026 |
| Type object | Appartement, galerijflat |
| Woonlaag | 2e woonlaag |
| Soort bouw | Bestaande bouw |
| Toegankelijkheid | Mindervaliden Senioren |
| Bouwperiode | 2006 |
| Dakbedekking | Bitumen |
| Type dak | Platdak |
| Isolatievormen | Ankerloze spouwmuren Dakisolatie Dubbel glas HR-glas Kierdichting Muurisolatie Spouwmuren Vloerisolatie Volledig geïsoleerd |
| Woonoppervlakte | 64 m² |
| Inhoud | 211 m³ |
| Oppervlakte externe bergruimte | 17 m² |
| Oppervlakte gebouwgebonden buitenruimte | 4 m² |
| Aantal bouwlagen | 1 |
| Aantal kamers | 2 (waarvan 1 slaapkamer) |
| Aantal badkamers | 1 (en 1 apart toilet) |
| Ligging | Dichtbij openbaar vervoer In centrum Vrij uitzicht |
| Energielabel | A |
| CV ketel | Intergas Kombi Kompakt HR |
| Warmtebron | Gas |
| Bouwjaar | 2006 |
| Combiketel | Ja |
| Eigendom | Eigendom |
| Aantal parkeerplaatsen | 1 |
| Aantal overdekte parkeerplaatsen | 1 |
| Warm water | CV-ketel |
| Verwarmingssysteem | Centrale verwarming |
| Ventilatie methode | Balansventilatie Mechanische ventilatie Natuurlijke ventilatie |
| Badkamervoorzieningen | Douche Wastafel |
| Parkeergelegenheid | Parkeerkelder |
| Heeft een balkon | Ja |
| Heeft kabel-tv | Ja |
| Heeft een lift | Ja |
| Glasvezelaansluiting aanwezig | Ja |
| Beschikt over een internetverbinding | Ja |
| Heeft schuur/berging | Ja |
| Heeft ventilatie | Ja |
| Ingeschreven bij de KvK | Ja |
| Jaarlijkse vergadering | Ja |
| Periodieke bijdrage | Ja |
| Reservefonds | Ja |
| Meer jaren onderhoudsplan | Ja |
| Onderhoudsverwachting | Ja |
| Opstal verzekering | Ja |
| Kadastrale aanduiding | Ede K 16790 |
| Omvang | Appartementsrecht of complex |
| Eigendomsituatie | Eigen grond |
| Indexnummer | 32 |
| Kadastrale aanduiding | Ede K 16790 |
| Omvang | Appartementsrecht of complex |
| Eigendomsituatie | Eigen grond |
| Indexnummer | 139 |